Anbau Wohn- und Geschäftshaus Echterdinger Str. 9
70771 Leifelden-Echterdingen
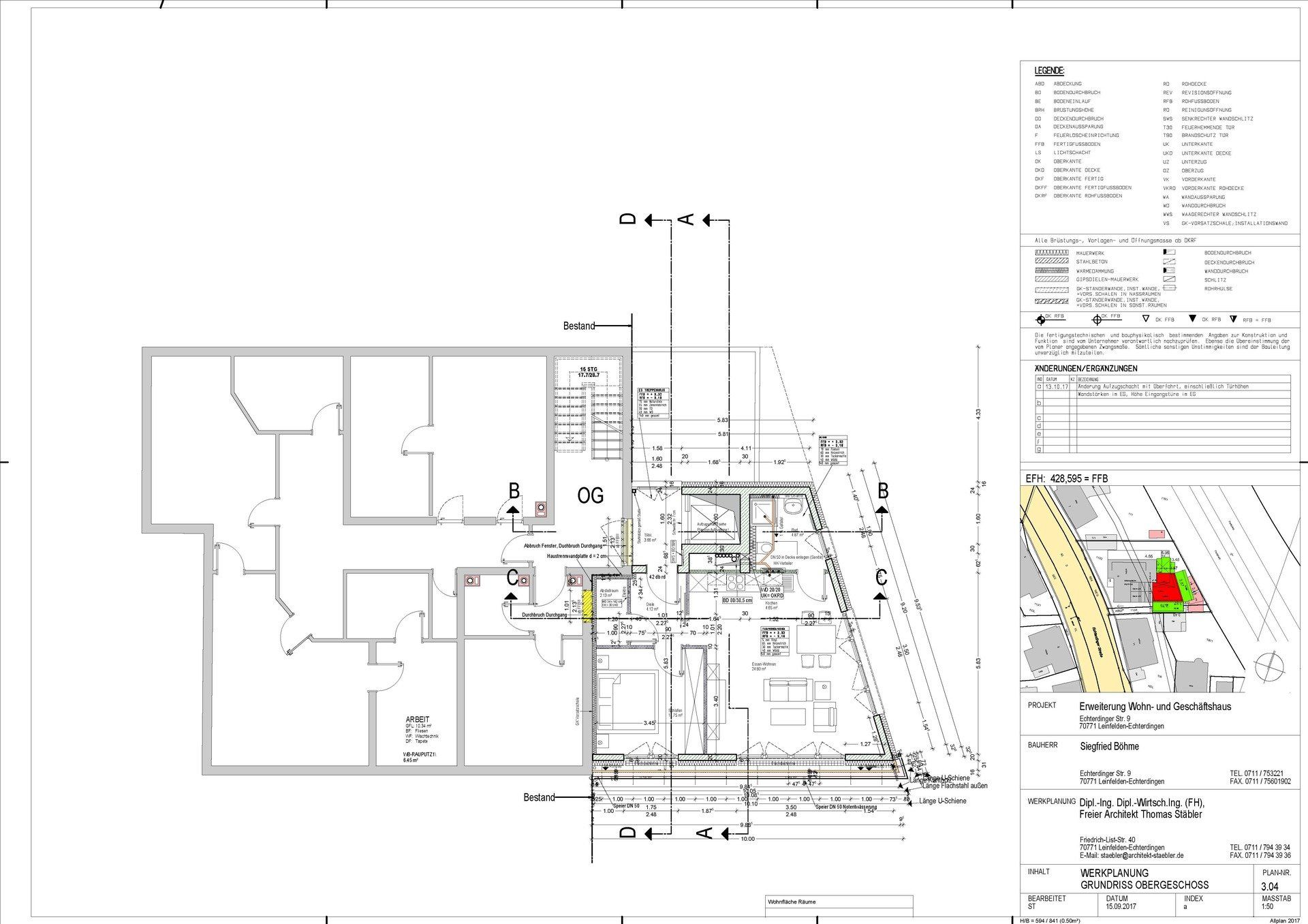
1 Wohneinheiten und Gewerbe im EG
Anbau einer Aufzuganlage mit 4 Haltestellen
Anbau einer Aufzuganlage mit 4 Haltestellen
Daten zum Projekt
Baujahr: 2018
Wohnfläche im OG: ca. 55 m²
Gewerbefläche im EG: ca. 55 m²
Dachterrasse im DG: ca. 25 m²
Stellplätze im UG: 5 St.
Kurzbaubeschreibung
- Anbau mit Durchbrüchen zum Altbau und gleiche Deckenhöhen.
- Ausführung ab Baugesuch Leistungspahsen 5-9 HOAI
- Bauzeit Januar bis August 2018
- Abbruch der Eingangsanlage bei laufendem Betrieb einer Arzpraxis.
- Tiefgründungen um mögliche Setzungen zwischen Alt- und Neubau möglichst zu vermeiden.
- Kompetter Stahlbetonbau, bei dem auch im Winter durchgearbeitet werden konnte.
- Aufzuganlage über 4 Haltestellen ohne Aufzugüberfahrt.
- Anbindung der Heizung als Fußbodenheitzung an die alte Heizanlage über zusätzlichen Heizregister.







