2 Mehrfamilienhäuser Stuttgart-Möhringenam Riedsee
Daten zum Projekt
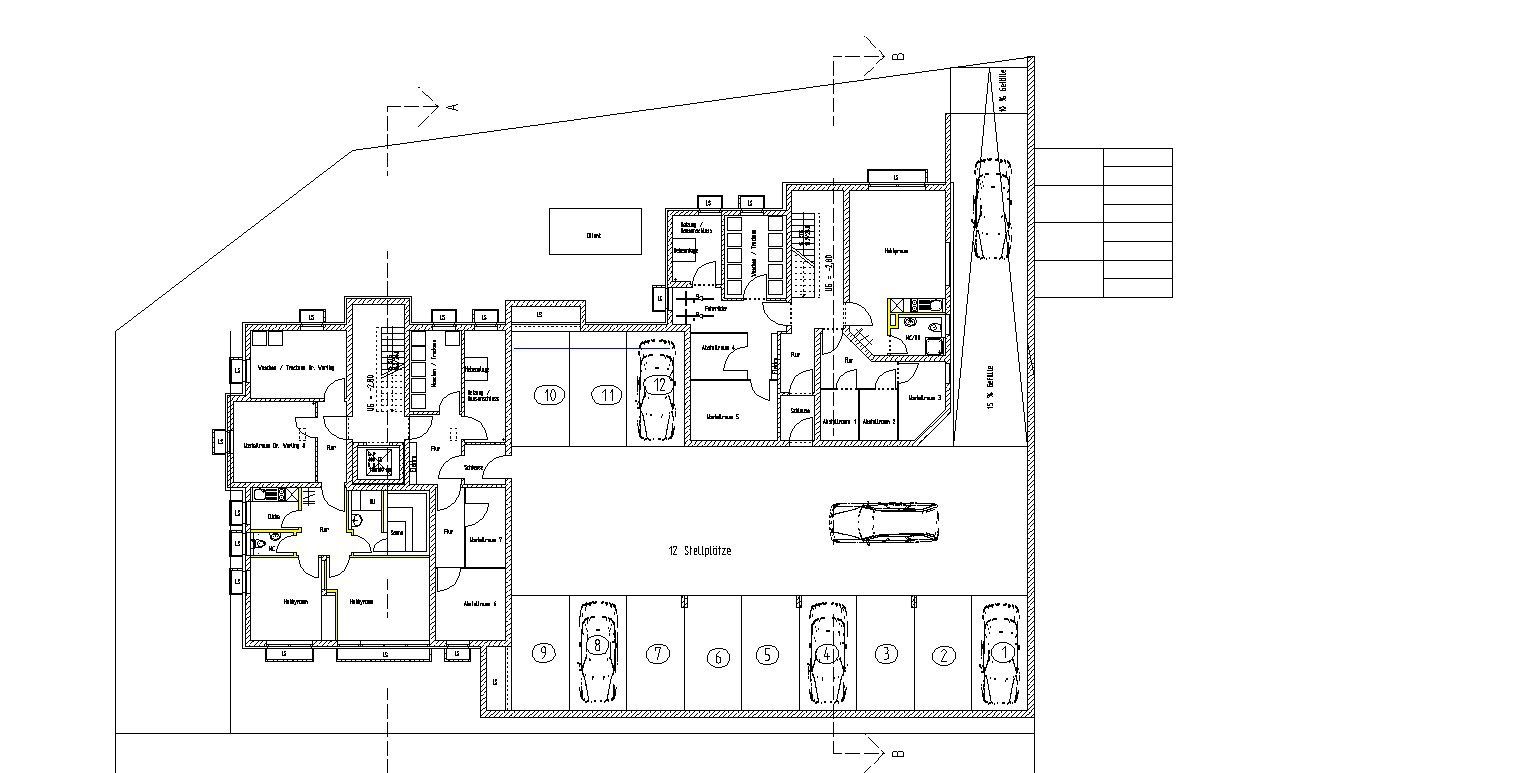
Direkt am Riedsee in Stuttgart-Möhringen konnten 2 Mehrfamilienhäuser mit Tiefgarage verwirklicht werden.
Baujahr: 2005
11 Wohneinheiten mit ca. 660 m² Wohnfläche
+ 2 große Hobbyräume im UG
Tiefgarage mit 12 St.
Kurzbeschreibung
- Ausführung aller Leistungsphasen 1-9 HOAI
- Durchführung eines wasserrechtlichen Verfahrens auf Grund des Riedsees. Der Wasserspeigel steht ca. 1,60 hoch an den
Außenwänden des Untergeschosses. - Erstellung einer Beweissicherung der Nachbarschaft.
- Ausschreibung als Funktionale-Leistungsbeschreibung und Vergabe mit Pauschalvertrag an einen Generalunternehmer
zum Festpreis. - Im EG und OG befinden sich 2-Zimmer-Wohnungen. Die Dachgeschosse sind individuell ausgebaut, als 3-4 Zimmer
Maisonette-Wohnung. - Im West-Haus mit Aufzug für den Eigentümer.
- Im UG befinden sich große Hobbyräume, sowie die Tiefgarage und sonstige Nebenräume.
- Die Beheizung erfolgt mit Gas-Brennwerttechnik im UG für jedes Haus separat.





